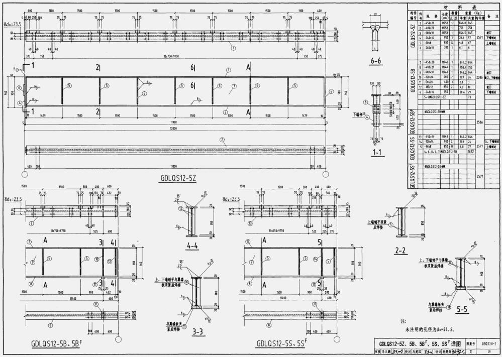
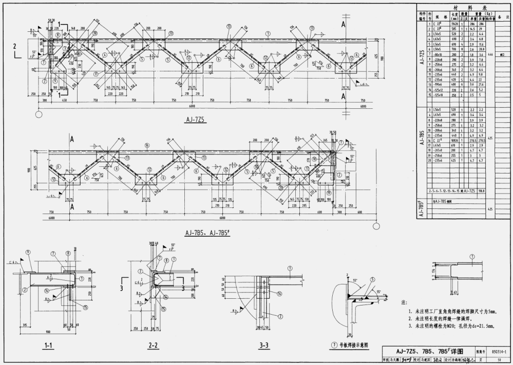
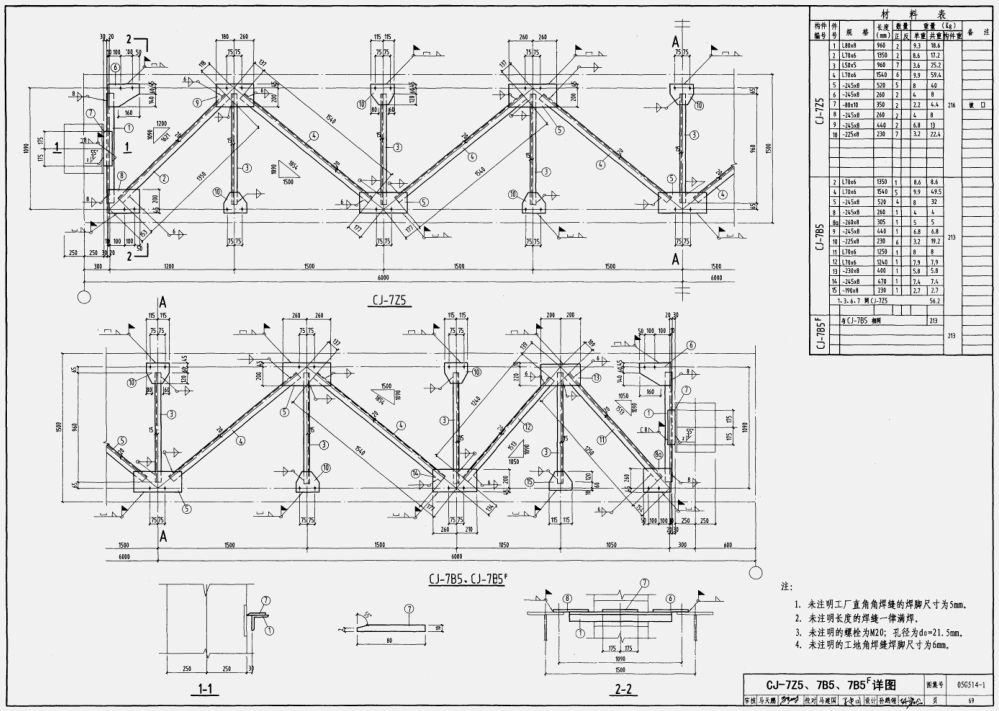
05G514-1 12m实腹式钢吊车梁轻级工作制(A1A3)Q235钢图集简称实腹式钢吊车梁图集或05g5141 12,本节内容东坡下载站为大家整理带来的这份实腹式钢吊车梁图集共由94页组成,这是一份十分适合打印的图集,如果你正好需要一份这样的“05g5141 12下载”文档的话,那就赶紧点击本文下方的下载地址进行下载查阅吧!
温馨提示:
本文档为PDF格式文档,因此需确保在阅读之前你已经安装了PDF阅读器,如果尚未安装阅读器,建议下载福昕PDF阅读器或其他PDF阅读器进行安装后阅读。
图集样张





pdf格式免费版05G514-1 12m实腹式钢吊车梁轻级工作制(A1A3)Q235钢图集相关内容小编就为大家介绍到这里了,更多pdf格式免费图集资料下载,敬请关注东坡下载站!
- PC官方版
- 安卓官方手机版
- IOS官方手机版














19dx101-1建筑电气常用数据2019PDF版





10S505柔性接口给水管道支墩图集pdf格式高清
12K404地面辐射供暖系统施工安装图集pdf高清
建筑工程绿色施工规范GB/T 50905-2014pdf电
11BS4排水工程图集(建筑设备施工安装通用图
05SS904民用建筑工程设计常见问题分析及图示
GB50164-2011混凝土质量控制标准规范pdf格式
11SG102-3钢吊车梁系统设计图平面表示方法和